top of page
New York City, NY
Charles street
Condominium
with Richard Meier
& Partners
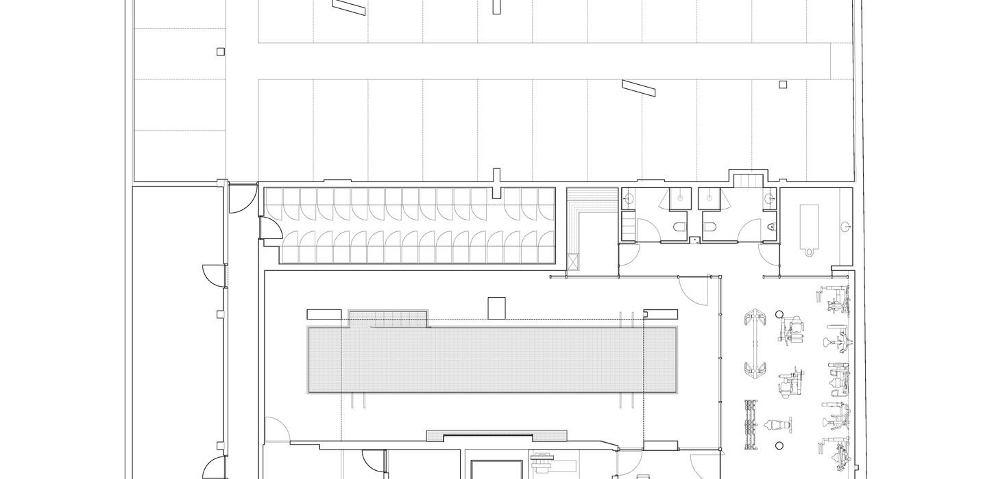
Located along the Hudson River on the west side of Manhattan in Greenwich Village, 16 story glass condominium tower including 4 studio units (average 670 sf), 2 One-bedroom units (average 1,041 sf), 2 Two-bedroom units (average 1,674 sf), 22 Three-bedroom units (average 2,458 sf) and a two-level 4-bedroom penthouse with 4,520 sf. All the Three-bedroom units have balconies. The penthouse has a terrace that wraps South, West and North. At the ground floor a commercial retail area of 1,673 sf faces West Street.
Completed 2005
bottom of page
















